Preeminent Solutions Engineering

Forensic Case 8: Commercial Residential Building - Townhome

Forensic Case 8: Commercial Residential Building - Townhome

Preeminent Solutions, Inc. is pleased to present this civil and structural engineering report to XXX Engineering Inc. This executive summary outlines the scope, methodology, and key outcomes of the project titled “Commercial Residential Building – Townhome,” located in Sanford, Florida.

The project involved the architectural design, rendering, and comprehensive structural analysis of a five-storey townhome residential building. The structure was designed with an approximate clear floor-to-floor height of 10 feet. The structural system consists of a reinforced concrete first floor, providing a robust and durable base, while the second through roof levels were designed using a wood-framed structural system to optimize constructability, cost efficiency, and performance.

As part of the engineering effort, Preeminent Solutions, Inc. performed a detailed evaluation of the proposed building configuration, developed structural design concepts, and executed structural analyses in accordance with applicable building codes and industry standards. The
design approach accounted for gravity, lateral, and serviceability requirements to ensure structural safety, functionality, and long-term performance.

This report documents the engineering assumptions, design criteria, analysis procedures, and final structural solutions developed for the project. The completed design supports the architectural intent while meeting structural performance requirements and constructability considerations, providing a coordinated and code-compliant solution suitable for implementation.

This project highlights the importance of field verification, structural assessment of existing conditions, and engineered temporary works when modifying critical load-bearing elements in commercial structures. The successful execution of the shoring and replacement strategy provided a safe transition from deficient existing conditions to a permanent, code-compliant structural solution.

Project Description:

The Townhome Residential Building project is a five-storey mixed-structure development located in Sanford, Florida. The project scope includes architectural design, three-dimensional renderings, and full civil and structural engineering analysis to support a safe, efficient, and code-compliant building design. The structure is designed with an approximate clear floor-to-floor height of 10 feet, providing functional and comfortable residential spaces.Specifically, Preeminent Solutions, Inc. has been engaged to provide the following:

The structural system consists of a reinforced concrete first floor, selected to support higher gravity loads, enhance durability, and provide a stable base for the structure. The second through roof levels utilize a wood-framed structural system, offering constructability efficiency, reduced structural weight, and cost-effective construction while maintaining performance requirements. The design incorporates gravity and lateral load-resisting systems to address dead, live, wind, and other applicable loads in accordance with the Florida Building Code and referenced standards.

Structural analysis and design were performed to ensure adequate strength, stability, and serviceability, with particular attention given to load path continuity, lateral force resistance, and foundation coordination. The final design integrates architectural intent with structural performance, constructability, and regulatory compliance, providing a coordinated solution suitable for permitting and construction.

Specifically, Preeminent Solutions, Inc. was engaged to provide civil and structural engineering 
services for the architectural design, structural analysis, and structural system development of a five-storey townhome residential building located in Sanford, Florida.

The services provided include the preparation of an Engineering Report documenting the design basis, structural analysis, and final structural solutions developed for the project in support of architectural intent, constructability, and code compliance.

Scope of Services:

The scope of structural engineering services included the following:
I. Development of structural design criteria consistent with the Florida Building Code and
   applicable referenced standards.
II. Review of architectural layouts and coordination of structural framing systems.
III. Structural analysis of the proposed building, including gravity and lateral load evaluation.
IV. Finite Element Analysis (FEA) modeling of the structural system to assess load
     distribution, structural behavior, and overall performance under governing load combinations.
V. Design of a reinforced concrete structural system at the first floor and a wood-framed
    structural system from the second floor through the roof.
VI. Coordination of vertical and lateral load paths to ensure structural stability and continuity.

Deliverables:

A. Prepared architectural design support documentation and structural framing concepts.
B. Performed structural analysis and FEA modeling of the proposed townhome structure.
C. Developed structural design recommendations and member sizing consistent with code requirements. 
D. Prepared an Engineering Report that includes:
    I. Description of the structural system and design assumptions.
    II. Summary of structural analysis and modeling approach.
    III. Design considerations and governing load cases.
    IV. Final structural recommendations suitable for permitting and construction.

File Materials Reviewed

In preparation for the report and analysis, the engineer reviewed the documents noted below:
   a) Architectural drawings and design criteria provided by the Client
   b) Applicable Florida Building Code provisions
   c) ASCE 7 hazard and load data applicable to the project site
   d) Site-specific wind and environmental data relevant to Sanford, Florida
   e) Reference standards and material design codes applicable to reinforced concrete and wood construction
   f) Federal Emergency Management Agency (FEMA) Flood Hazard Data for the subject structure
   g) ASCE Hazard Data for the subject structure
   h) U.S. Geological Services (USGS) Site Data
       i) National Oceanic and Atmospheric Administration (NOAA) National Centers for Environmental Information (NCEI) for Date of Loss
   j) Photographs taken at site walkdown by inspecting engineer

Documents Cited:

N/A

Architectural Description:

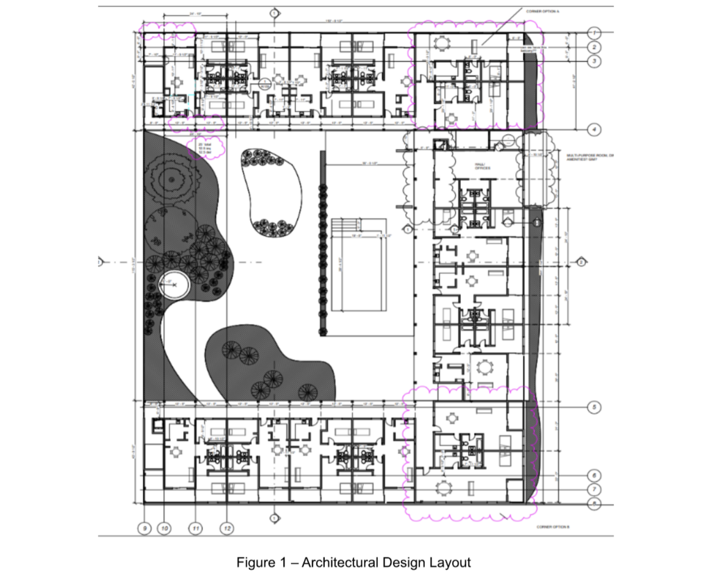
The Townhome Residential Building is a thoughtfully planned five-storey development designed to balance functionality, aesthetics, and efficient use of space within an urban residential context. The architectural layout, as illustrated in the attached floor plan, reflects a cohesive design approach that integrates residential living units, circulation elements, and shared amenities within a well-organized building footprint.

Overall Building Layout and Organization

The building is organized around a clear and legible plan geometry that promotes ease of navigation, efficient circulation, and logical separation of private and semi-private spaces. The floor plan demonstrates a linear and courtyard-oriented configuration, allowing for adequate daylight penetration, natural ventilation opportunities, and visual connectivity to landscaped outdoor areas. This configuration enhances the quality of interior spaces while responding to site constraints and zoning considerations.

The ground level is arranged to accommodate primary access points, vertical circulation cores, and support spaces that serve the upper residential floors. Upper levels are predominantly residential, with repeated and efficient unit layouts stacked vertically to optimize structural alignment and construction efficiency.

Residential Units

The residential units are designed to provide functional, comfortable living environments with clearly defined living, dining, kitchen, bedroom, and bathroom zones. Unit layouts emphasize open-plan living areas to maximize flexibility and spatial efficiency, while private areas such as bedrooms and bathrooms are strategically located to ensure privacy and acoustic separation.

Each unit is planned to allow for natural light and ventilation through exterior walls, with window placements coordinated to enhance interior comfort and energy performance. The repetition of unit types across floors supports construction efficiency while maintaining consistency in
architectural expression.

Circulation and Access

Vertical circulation is provided through centrally and strategically located stairwells and elevator cores, ensuring efficient access to all levels of the building and compliance with life safety and accessibility requirements. Horizontal circulation corridors are designed with adequate clear widths to accommodate resident movement, emergency egress, and building services. Corridor layouts are direct and intuitive, minimizing travel distances and improving wayfinding throughout the building.

Entry points to individual units are clearly defined and separated from common circulation areas to reinforce the distinction between shared and private spaces. The architectural layout ensures that circulation elements are efficiently integrated without compromising usable floor area within the residential units.

Common and Shared Spaces

The architectural plan incorporates shared spaces and amenities intended to enhance resident experience and foster a sense of community. These areas are positioned to be easily accessible from primary circulation routes while remaining visually and acoustically separated from private living spaces. Where applicable, common spaces are oriented toward landscaped areas or internal courtyards to provide visual relief and outdoor engagement.

Relationship to Site and Landscaping

The building footprint is carefully positioned within the site to accommodate landscaped zones, walkways, and open spaces. The floor plan reflects coordination between built areas and exterior features, allowing for functional outdoor spaces that complement the residential use.

Landscaping elements are integrated into the overall site design to improve aesthetics, provide shading, and contribute to stormwater management strategies.

Architectural Expression and Functionality

Architecturally, the building is designed to present a cohesive and contemporary residential character. The repetition of unit layouts and structural bays supports a clean and organized
façade rhythm, while variations in window placement and building articulation provide visual
interest. The plan supports flexibility for façade treatments, balcony integration (where
applicable), and material transitions that enhance the overall architectural identity of the
development.

Code Compliance and Design Intent

The architectural layout is developed in coordination with applicable building codes and standards, including requirements for life safety, accessibility, egress, and habitability. Spatial planning reflects careful consideration of minimum room sizes, corridor widths, stair configurations, and service clearances. The design intent prioritizes resident comfort, safety, and long-term functionality while maintaining constructability and coordination with structural and building systems.

Integration with Structural and Building Systems

The architectural design is closely coordinated with the structural system, with unit layouts, walls, and circulation cores aligned to support efficient load transfer and minimize conflicts.

Vertical stacking of units and services enhances coordination with mechanical, electrical, and plumbing systems, contributing to reduced construction complexity and improved long-term maintenance.

Structural Description

The Townhome Residential Building is a five-storey structure located in Sanford, Florida, designed using a hybrid structural system consisting of a reinforced concrete first floor and wood-framed construction from the second floor through the roof. The building is configured with an approximate clear floor-to-floor height of 10 feet and is arranged to provide an efficient and continuous structural load path.

Structural System Framing Overview

The townhome building was designed using a hybrid structural framing scheme that combines reinforced concrete construction at the first floor with wood-framed construction from the second floor through the roof. This approach was selected to balance structural performance, constructability, material efficiency, and architectural requirements typical of multi-story residential developments.

The overall framing system establishes clear and continuous load paths for both gravity and lateral forces. Gravity loads originating at the roof and upper floors are transferred through wood framing elements into the primary vertical supports and down to the reinforced concrete first-floor structure and foundation. Lateral loads are resisted primarily by designated columns and main load-bearing walls, which provide stability against wind and other applicable horizontal forces.

Careful coordination was required to ensure compatibility between the concrete and wood systems, particularly at interface levels, to maintain continuity of load transfer and structural integrity.

First Floor – Reinforced Concrete System

The first floor was designed as a reinforced concrete structural system to serve as the primary structural base of the building. This system provides enhanced stiffness, strength, and durability at the ground level, where load demands are highest and long-term performance is critical.

The reinforced concrete framing supports both gravity loads from the upper wood-framed levels and lateral loads transmitted through the columns and load-bearing walls. Concrete elements were designed to distribute these forces efficiently to the foundation system while limiting deflections and maintaining overall building stability.

In addition, the concrete first floor provides a robust interface for anchoring the upper wood-framed structure, allowing for reliable connections and effective transfer of forces between differing construction materials.

See Image below for figure detail:

Second Floor Through Roof – Wood Framing System

The second floor through the roof levels were designed using conventional wood framing systems, including wood beams, joists, and purlins. These elements were designed primarily to resist gravity loads, including dead loads, live loads, and roof loads, and to transfer these forces to the supporting columns and walls below.

Wood framing was selected for the upper stories due to its reduced self-weight, construction efficiency, and suitability for residential layouts. The system allows for flexible floor planning while minimizing overall structural mass and foundation demands.

Connections between wood framing elements and the supporting concrete and lateral systems were carefully detailed to ensure proper load transfer, accommodate differential material behavior, and maintain structural continuity throughout the height of the building.

Structural Load-Resisting Systems

Gravity Load-Resisting System

The gravity load-resisting system for the townhome building was designed to safely support and transfer all vertical loads, including dead loads, live loads, and roof loads, from the superstructure to the foundation. From the second floor through the roof, gravity loads are primarily carried by wood structural elements such as beams, joists, and purlins.

These members were sized and detailed to meet strength and serviceability requirements while accommodating the architectural layout of the residential units.

Gravity loads from the wood-framed upper levels are transferred to supporting columns and load-bearing walls and subsequently delivered to the reinforced concrete first-floor structure. The concrete system then distributes these loads efficiently to the foundation. Particular attention was given to controlling deflections and ensuring compatibility between the wood framing and the concrete structure at the interface levels.

Lateral Load-Resisting System

The lateral load-resisting system consists primarily of designated structural columns and main load-bearing walls that provide resistance to wind and other applicable horizontal forces. These elements were designed to deliver adequate strength, stiffness, and stability to the building
under governing lateral load combinations.

Lateral forces acting on the building are collected at each floor level through diaphragm action and transferred to the lateral-resisting elements. The columns and walls provide a continuous vertical load path from the roof to the foundation, ensuring that lateral forces are effectively resisted and safely transferred to the ground. The reinforced concrete first floor plays a critical role in anchoring and stabilizing the lateral system.

Load Path and System Integration

A clear and continuous load path was a primary design objective for both gravity and lateral systems. The structural design ensures that loads are transferred logically and efficiently through connected structural elements without abrupt changes in stiffness or load direction.

The integration of the reinforced concrete first floor with the wood-framed upper levels required careful coordination of connections, detailing, and material interfaces. Load transfer mechanisms were designed to accommodate differences in material behavior while maintaining structural continuity. This integrated approach results in a cohesive structural system that provides reliable performance, constructability, and long-term durability.

Foundation System

The foundation system consists of reinforced concrete elements designed to support both
gravity and lateral loads transmitted from the columns and main structural walls. Foundation
components were proportioned to ensure adequate bearing capacity, stability against overturning and sliding, and acceptable settlement performance based on assumed site conditions.

Structural Analysis and Methodology

Design Loads and Load Combinations

The structural analysis and design for the townhome project were performed based on
applicable building code requirements and standard engineering practice. Design loads
considered in the analysis included dead loads from structural and non-structural components,
live loads associated with residential occupancy, and roof loads. Environmental loads, including
wind forces, were evaluated in accordance with the governing code criteria for the project
location in Sanford, Florida.
Load combinations were developed to represent critical strength and serviceability conditions.
Both gravity-only and combined gravity-and-lateral load cases were analyzed to ensure that all
structural elements satisfied required performance criteria. The governing load combinations
were used for the design of members, connections, and supporting elements throughout the
structure.

Analysis Approach and Assumptions

The structural system was analyzed using a rational engineering approach consistent with the selected framing systems. The analysis considered the global behavior of the building, including the interaction between gravity and lateral systems and the distribution of forces through the
structural framework.

Reasonable assumptions were made regarding boundary conditions, member continuity, and load distribution based on typical construction practices and anticipated detailing. Floor and roof systems were assumed to act as diaphragms to transfer lateral forces to the designated lateral load-resisting elements. Deflection limits and stability criteria were evaluated to ensure acceptable performance under service-level loading.

Simplifications adopted in the analysis were conservative in nature and were applied to ensure safety while maintaining constructability and efficiency of the structural design.

Material Coordination (Concrete and Wood)

Special attention was given to the coordination between the reinforced concrete first-floor structure and the wood-framed upper levels. The analysis accounted for differences in stiffness, strength, and deformation characteristics between concrete and wood materials.

Connections at the concrete-to-wood interface were designed to provide effective transfer of gravity and lateral loads while accommodating differential movement and long-term material behavior. This coordinated material approach ensured continuity of the load path, structural compatibility, and reliable performance of the hybrid structural system.

Engineering Coordination and Constructability

Interface Between Concrete and Wood Systems

Engineering coordination at the interface between the reinforced concrete first floor and the wood-framed upper levels was a critical aspect of the project’s constructability and long-term performance. The transition level was designed to provide a clear and reliable transfer of gravity and lateral loads between the two structural systems while accommodating differences in material behavior.

Connection details were developed to ensure proper anchorage of the wood framing to the concrete structure, allowing forces from the upper levels to be effectively transferred into the concrete system and ultimately to the foundation. Consideration was given to differential shrinkage, creep, and stiffness characteristics inherent to concrete and wood materials.

Detailing was selected to maintain structural continuity, minimize stress concentrations, and facilitate straightforward field installation.

Constructability was further enhanced by clearly defining load transfer points and sequencing requirements, reducing the potential for misinterpretation during construction.

See structural model below:

Design Results and Outcomes

11.1 Structural Performance Summary
The completed structural design for the Commercial Residential Building – Townhome achieved the intended performance objectives for strength, stability, and serviceability. The hybrid structural system effectively supports gravity and lateral loads while maintaining clear and continuous load paths from the roof to the foundation.

The reinforced concrete first-floor structure provides a stable and durable base for the building, efficiently resisting accumulated gravity loads and anchoring the lateral load-resisting system.

The wood-framed second floor through roof performs efficiently under gravity loading, with member sizing and detailing selected to control deflections and support residential occupancy requirements. The lateral system, consisting of columns and main load-bearing walls, delivers adequate stiffness and resistance to wind-induced forces, ensuring overall building stability.

The integration of concrete and wood systems results in a balanced structural solution that optimizes material use while maintaining reliable structural performance throughout the building height.

Compliance with Project Requirements

The structural design complies with the defined project requirements, including architectural constraints, functional use, and constructability considerations. The framing systems were coordinated to align with the architectural layout, floor-to-floor heights, and intended residential configuration.

All structural components were designed using accepted engineering principles and applicable code criteria for the project location. The final design meets required safety, serviceability, and performance standards while supporting efficient construction practices. The resulting structural solution satisfies the project objectives and provides a sound basis for implementation.
See the figures and tables below for further details:

Conclusion

This case study demonstrates the successful delivery of an integrated architectural and structural engineering solution for the Commercial Residential Building – Townhome located in Sanford, Florida. Preeminent Solutions, Inc. developed a structurally sound and efficient design that meets the functional, architectural, and performance requirements of a five-story residential building utilizing a hybrid concrete and wood framing system.

Through careful structural analysis, clear definition of gravity and lateral load-resisting systems, and thoughtful coordination between reinforced concrete and wood construction, the project achieves reliable load transfer, overall stability, and constructability. The reinforced concrete first floor provides a durable and stable base, while the wood-framed upper levels offer efficiency and flexibility suited to residential use.

The final design reflects adherence to accepted engineering principles, applicable building codes, and project-specific requirements. This project highlights Preeminent Solutions, Inc.’s capability to deliver coordinated, code-compliant, and constructible structural solutions for multi-story commercial residential developments, and provides a strong foundation for successful project implementation.